Logistieke hal 7.148m² met kantoren op de Ringlaan in Kuurne
ALGEMEEN
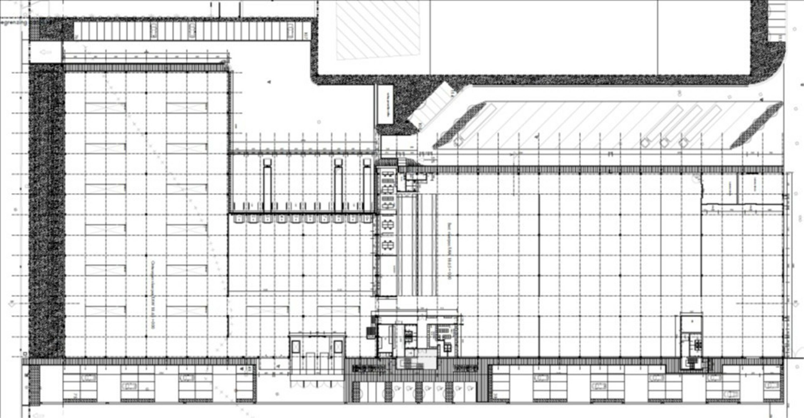
Deze logistieke site is strategisch gelegen langs de Ringlaan in Kuurne en combineert een ruime magazijnhal met volledig uitgeruste kantoorruimte. De logistieke ruimte omvat circa 13.302 m² en beschikt over een vrije hoogte variërend van 8,2 tot 10,2 meter, wat optimale stapel- en stockagecapaciteit biedt.
De hal is uitgerust met een sprinklerinstallatie, energiezuinige LED-verlichting en verwarming. Voor een efficiënte goederenbehandeling zijn er 10 laadkades en 4 sectionale poorten voorzien. Daarnaast is er een overdekte buitenruimte van circa 208 m² en een specifieke oplaadzone voor elektrische heftrucks. Inpandig bevinden zich bovendien magazijnierskantoren van circa 210 m², wat zorgt voor een praktische operationele organisatie.
Het aparte kantoorgedeelte beslaat circa 888 m² en omvat vier vergaderruimtes, open-space werkplekken, een ingerichte keuken met refter, sanitair voor mannen en vrouwen en sociale ruimtes met douches. Dit maakt het gebouw uitermate geschikt voor logistieke en distributieactiviteiten waarbij zowel operationele als administratieve functies op één locatie worden samengebracht.
De site beschikt over circa 73 parkeerplaatsen met een parkeerratio van 1 plaats per 15 m² kantoorruimte, wat zorgt voor voldoende parkeercapaciteit voor personeel en bezoekers.
Een complete en goed uitgeruste logistieke oplossing op een vlot bereikbare locatie in Kuurne.
Beschikbare ruimtes
Magazijn
• Logistieke ruimte van ca. 7.148m²
• Vrije hoogte: 8,2 – 10,2m
• Sprinkler
• LED
• Laadkades
• Sectionale poorten
• Verwarmd
• Overdekte buitenruimte ca. 208m²
• Oplaadzone elektrische heftrucks
• Inpandige magazijnierskantoren van ca. 210m²
Kantoren
• Aparte kantoren
• Meeting rooms
• Open space
• Ingerichte keuken/refter
• Sanitair M/V
• Sociale ruimtes met douches
• Ca. 73 parkeerplaatsen – ratio 1:15
Beschikbaar per september 2027
FINANCIEEL
• Huurprijs vanaf :
Jaarlijks : 550.000 EUR
* Magazijnen: 50EUR/m²/jaar
• Minimaal kantoor (af te spreken)
• Voorstel steeds op maat
• Buitenruimte in huidige staat inbegrepen in huurprijs
• Kantoren 115EUR/m²/jaar incl. parkings
• Magazijnierskantoren ca. 200m²: 90EUR/m²/jaar
• OV: ca. 7,5UR/m²/jaar
• Verzekering: Ca. 1EUR/m²/jaar
• Beheersfee bij opsplitsing van toepassing
• Algemene kosten: tbd
• Bijkomende hoekperceel optioneel bij te huren aan 60.000EUR/jaar





