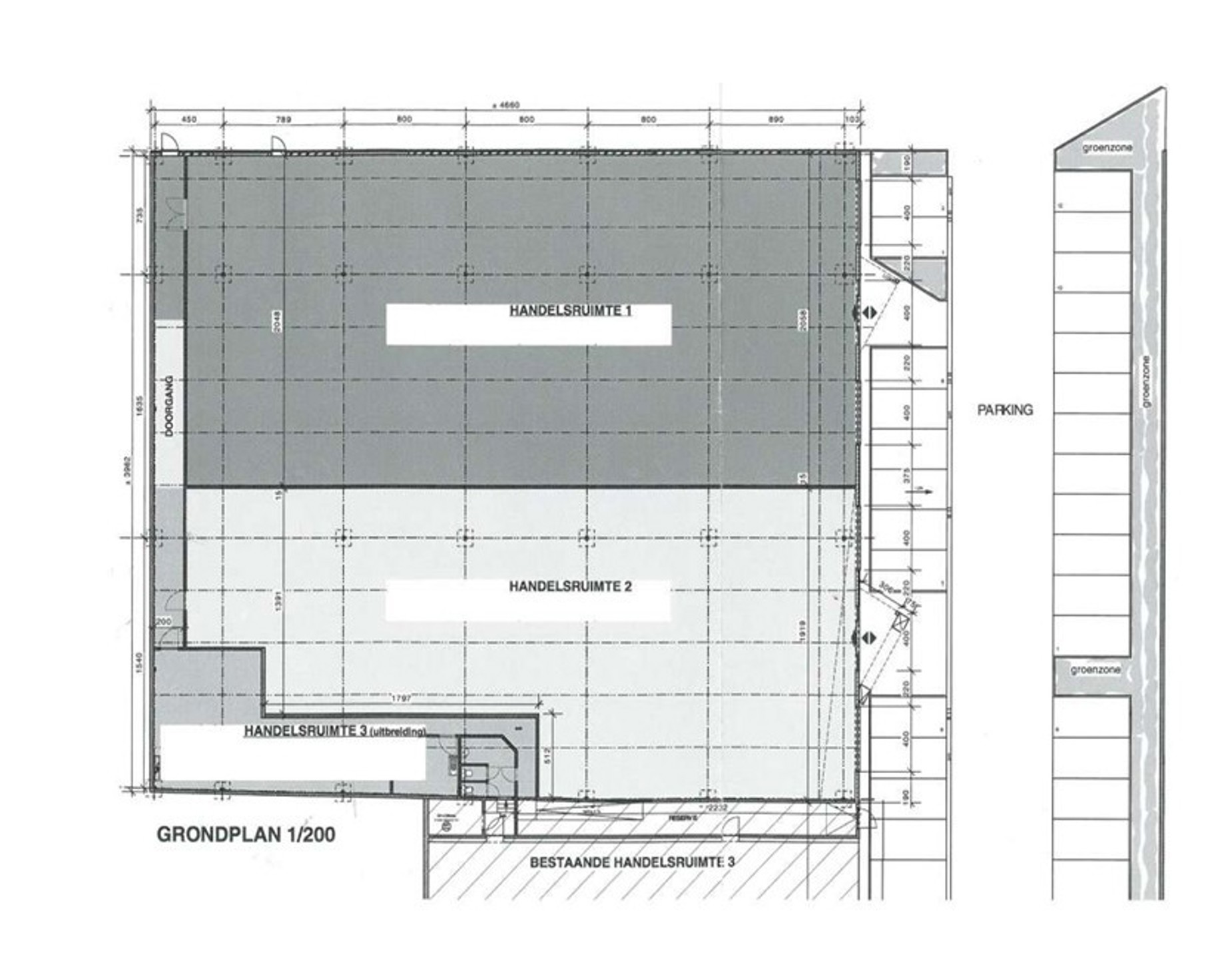
Winkelpand 640m²
Commerciële Toplocatie langs de Bergensesteenweg – Sint-Pieters-Leeuw
Deze ruime commerciële oppervlakte is gelegen op een absolute toplocatie langs de drukbezochte Bergensesteenweg, één van de belangrijkste toegangsassen naar het westen van Brussel. Dankzij de continue stroom aan voorbijgaand verkeer en de brede etalagemogelijkheden geniet het pand van uitstekende zichtbaarheid en een sterke commerciële uitstraling.
Een gevestigde retailomgeving
Het pand maakt deel uit van een dynamisch en succesvol retailcluster, met trekpleisters zoals JBC en ALDI in de onmiddellijke omgeving. Deze gevestigde retailers genereren een constante toestroom van bezoekers en zorgen zo voor een stabiel en divers klantenpotentieel. De site sluit bovendien perfect aan bij de huidige commerciële mix in de buurt, wat een sterke kruisbestuiving tussen de verschillende handelszaken creëert.
Optimale bereikbaarheid & comfort
De locatie is zeer vlot bereikbaar, zowel met de wagen als via het openbaar vervoer. In de omgeving zijn er ruime parkeermogelijkheden, wat het bezoek voor klanten en medewerkers aanzienlijk vergemakkelijkt. De directe verbindingen richting Brussel, Halle en omliggende gemeenten maken dit pand tot een logistiek en commercieel strategisch punt.
Uw troeven op deze locatie
-
Maximale visibiliteit dankzij hoge passage
-
Sterke commerciële buren en gevestigde retaildynamiek
-
Vlotte bereikbaarheid en ruime parkeergelegenheid
-
Geschikt voor diverse retailconcepten
-
Ideaal voor retailers die hun aanwezigheid in de Brusselse rand willen versterken
Een toekomstgerichte investering
Deze commerciële oppervlakte vormt een uitstekende opportuniteit voor ondernemingen die willen groeien in een markt die volop in beweging is. De combinatie van ligging, bereikbaarheid en een solide retailomgeving maakt dit pand een duurzame en rendabele keuze voor elke ambitieuze retailer





