Industrieweg 16, 2850 Boom
TE HUUR – Boom logistiek magazijn 6.516m² met 7 loskades
€ 40.800 / maand
7462m²
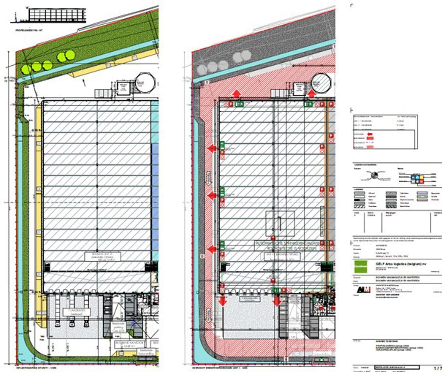
Modern logistiek magazijn bestaande uit 6.516m² magazijnruimte + 756m² mezzanine en 190m² kantoren. Het magazijn telt 7 los- en laadkades en 1 gelijkvloerse poort en het heeft een vrije hoogte van 12m. Volledig met sprinkler voorzien. Er horen 16 parkeerplaatsen en 6 vrachtwagen parkings bij. Centraal gelegen in Boom langs de A12 tussen Brussel en Antwerpen.
– Huurprijs: +/- 490.000 €/jaar
– huurtermijn: max/ 3 jaar (te bespreken)
Kenmerken
Bouwjaar
2017
Keuken
Ja
Airco
Ja
Toiletten - aantal
3
Luiken
Ja
Computer ruimte
Ja
Toiletten M/V
Ja
Dubbele beglazing
Ja
Kabelgoten
Ja
Type toiletten M/V
10m²
Aantal meeting ruimtes
1
Kantoren
190m²
Alarm
Ja
Ligging
Interesse of meer informatie nodig?





