Industrielaan 17, 2250 OLEN
Nieuwbouw magazijn met kantoor
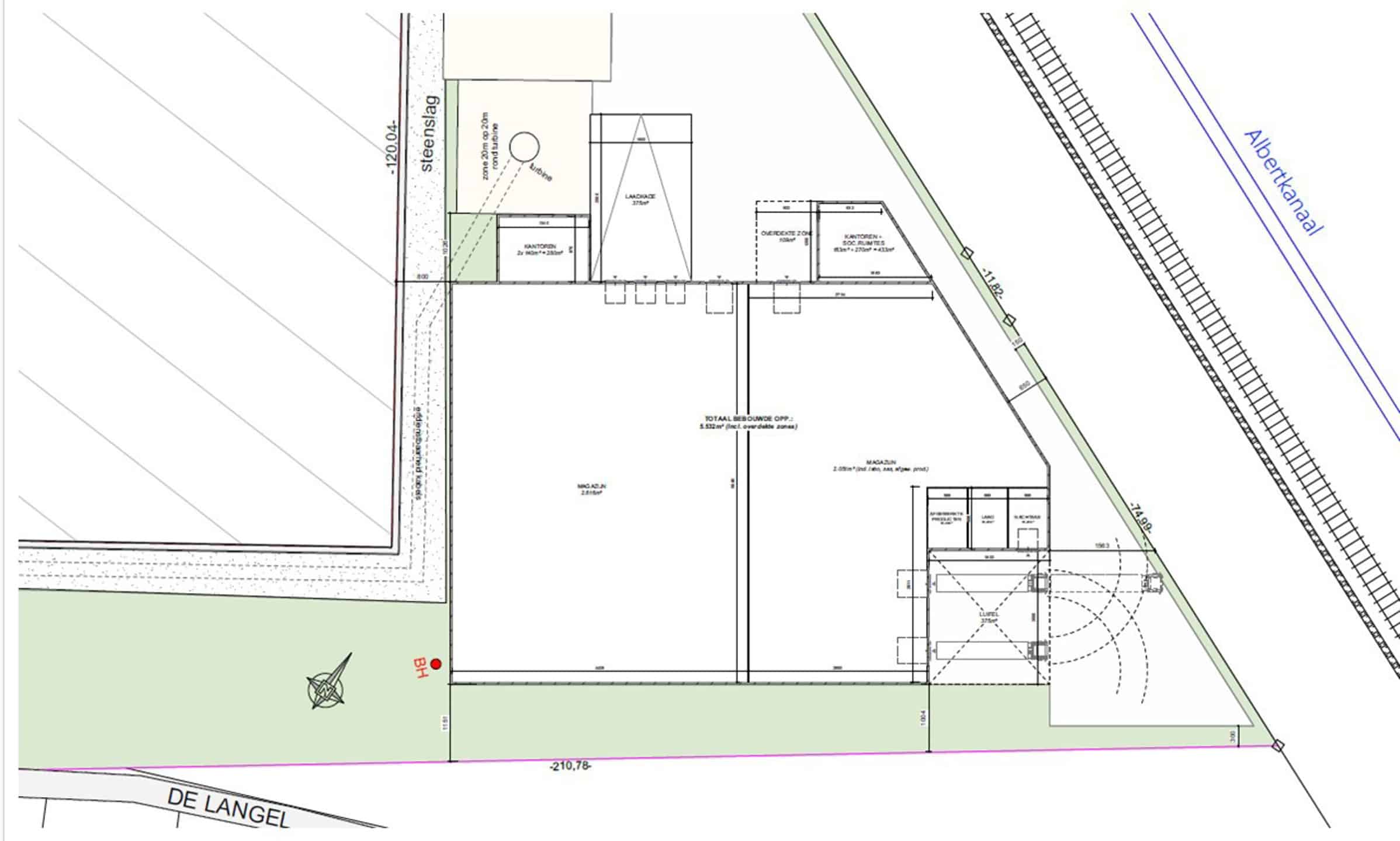
ALGEMEEN
Nieuwbouw magazijn van ca 5 500m² met kantoor ca 500m² te huur in Olen.
BESCHIKBAARHEDEN
1 grote unit (ca. 5.500 m²) voorzien met op de kop kantoren + sanitaire voorzieningen gelijkvloers + eerste verdieping (4 à 500 m²).
en vooraan 2 à 3 kades te voorzien en rechts achter 2.
FINANCIEEL
Huurprijs magazijn: €65/m²/jaar
Huurprijs kantoor: €135/m²/jaar
Kenmerken
O-Peil
Niet gelegen in een overstromingsgevoelig gebied





