Nieuwbouw KMO-units 4.04 te Dentergem
ALGEMEEN
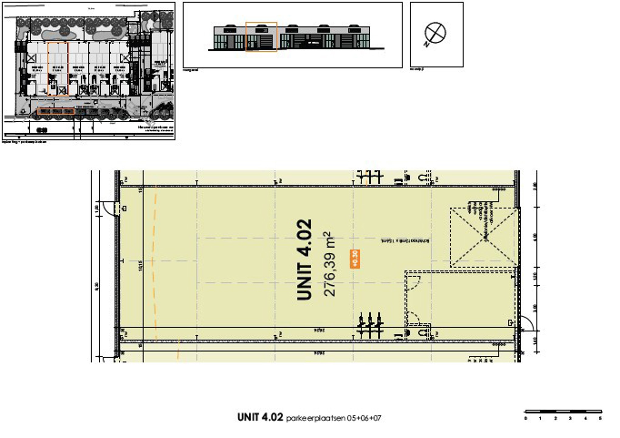
Nieuwbouw KMO-unit te koop in Dentergem
Beschikbare unit 4.04 heeft een oppervlakte van 276,39 m².
Strategisch gelegen tussen Tielt-Deinze-Waregem.
De unit beschikt over een sectionaal poort, 2 parkeerplaatsen
Naast productie en opslag, zijn commerciële activiteiten ook toegelaten.
FINANCIEEL
Totaalprijs (excl. registratierechten, BTW, kosten)
421.000,00€
Niet inbegrepen in de verkoopprijs en ten laste van de koper :
– alle kosten, rechten en erelonen van en voor de notariële aktes
– B.T.W. en verkooprechten; Alle veranderingen in het thans in voege zijnde BTW-tarief; hetzij verhoging, hetzij verlaging en alle tegemoetkomingen van overheidswege onder vorm van toelage, teruggave of anderszins, zijn uitsluitend in
het voor- of nadeel van de koper.
– de kosten van opmeting en plan (niet het bouwplan)
– het aandeel in de kosten van de verkavelings- en splitsingsakte / basisakte; De kosten verbonden aan de administratieve stukken zoals het bodemattest, stedenbouwkundige informatie / uittreksel uit het plannen- en vergunningenregister, zijn ten laste van de de verkoper in het kader
van de wettelijke leveringsplicht van de verkoper
– de kosten voor de opmaak van het postinterventiedossier
– de kosten inzake definitieve aansluitingen (incl. installaties, aankoppelingen, keuringen, indienststellingen, infra, waarborgen, …) met de nutsmaatschappijen en eventuele distributiecabines / netuitbreidingen
nutsen
– De verkoper zal dit coördineren en hiervoor wordt 10% coördinatiefee gerekend op het aandeel van de koper in voormelde kosten. Deze kosten zijn op heden niet definitief gekend. Er wordt hiervoor thans
door de koper een provisie betaald van € 7.500,00 (excl BTW) per unit. Van zodra deze kosten definitief gekend zijn, wordt door de verkoper een afrekening betreffende deze kosten opgesteld en zal dit
worden verrekend met de koper
– de eventuele door de koper aan de verkoper van de constructies bestelde meerwerken
– de verbruikskosten voor water, elektriciteit, … vanaf de voorlopige oplevering
– de onroerende voorheffing en alle belastingen of taksen zullen door de koper gedragen worden vanaf de voorlopige oplevering
– alle sommen die opvorderbaar zouden worden ingevolge een eventuele meerwaarde door het bevoegd fiscaal bestuur vastgesteld
– de bijdrage in het verplicht lidmaatschap van de op te richten / opgerichte VZW Parkmanagement (max. € 500,00 per jaar)





