Hannekenshoek 23, 2200 Herentals
Magazijn te huur langs de Hannekenshoek 23 te Herentals
€ 2.566,67 / maand
(
€ 55/m²/jaar
)
560m²
Nieuwbouw magazijn te huur.
Het gebouw bevindt zich op slechts 800 meter van de Ringlaan van Herentals. Dit zorgt voor een zeer vlotte bereikbaarheid, zowel vanuit Herentals als omliggende steden.
Daarnaast ligt de snelweg E313 (Luik – Hasselt – Antwerpen) op slechts 6km rijden.
Op het terrein zijn meerdere parkeerplaatsen voorzien, waaronder enkele uitgerust met laadpalen voor elektrische voertuigen.
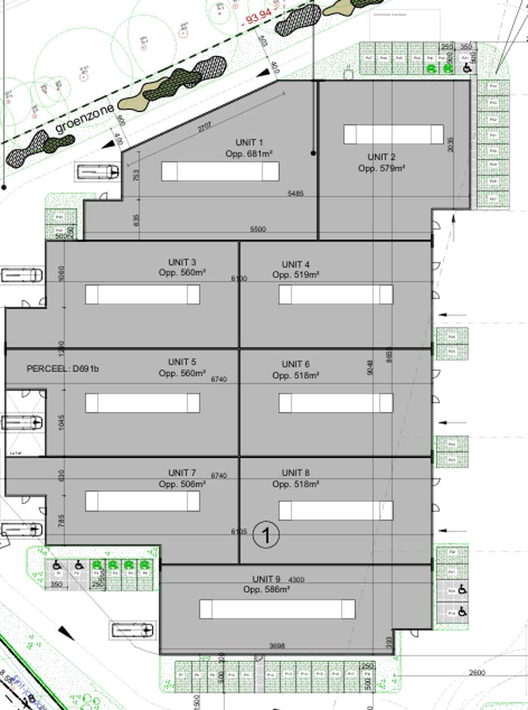
Binnen het gebouw worden meerdere magazijnunits aangeboden, elk met verschillende oppervlaktes.
De volgende units zijn momenteel beschikbaar:
Unit 3: 560 m²
Unit 5: 560 m²
Unit 7: 506 m²
Kenmerken
Parking buiten
Ja
Prijs - prijs/m²/j
55€
Ligging
Loods te huur in MorkhovenLoods te huur in HerentalsLoods te huur in NoorderwijkKMO unit te huur in HerentalsKMO unit te huur in MorkhovenKMO unit te huur in NoorderwijkMagazijn te huur in HerentalsMagazijn te huur in MorkhovenMagazijn te huur in NoorderwijkBedrijfsgebouw te huur in HerentalsBedrijfsgebouw te huur in MorkhovenBedrijfsgebouw te huur in Noorderwijk




