Logistieke ruimte met laadkades te huur
Algemeen:
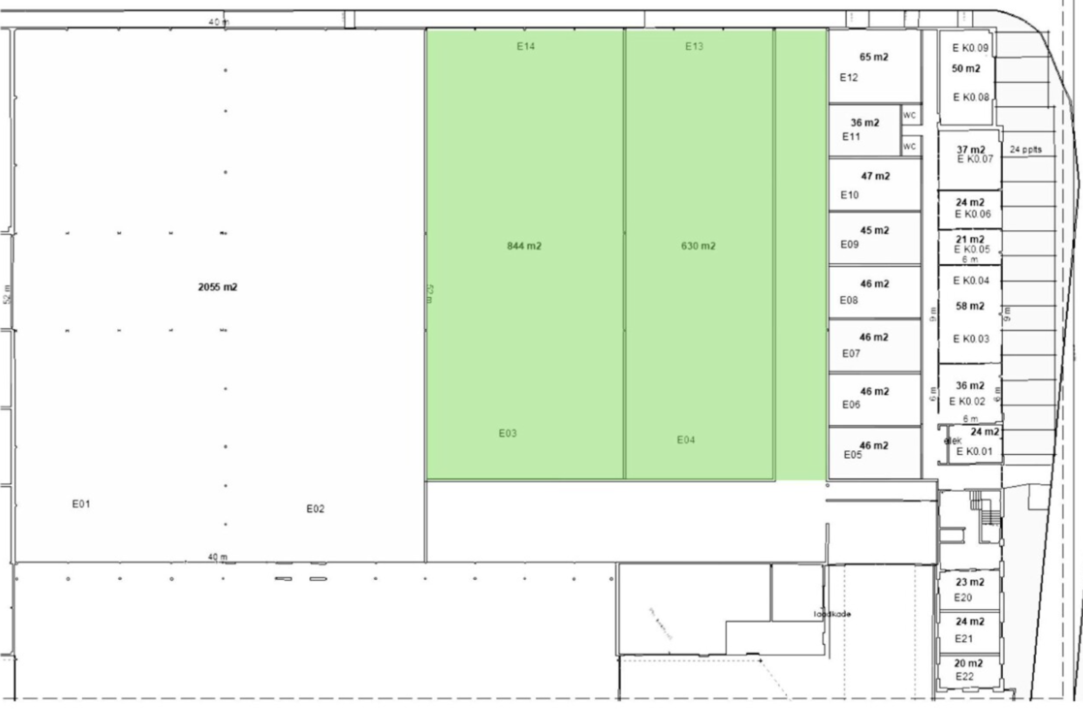
Logistieke ruimte te huur gelegen langs de Gustave Demeurslaan 69 in Beersel.
Binnen dit pand zijn flexibele oppervlaktes beschikbaar tussen 600 m² en 1500 m². Het pand ligt op slechts 950 m van het treinstation Buizingen. De snelweg E19 ligt op 2,2 km afstand, wat een vlotte bereikbaarheid garandeert.
De logistieke ruimte beschikt over een vrije hoogte van 7,5 meter en een stevige betonvloer met een hoge draagkracht, ideaal voor diverse logistieke toepassingen. Het pand is voorzien van sectionaalpoorten met rechtstreekse toegang en twee gemeenschappelijke laadkades inclusief een gemeenschappelijke gang.
De aanwezige lichtkoepels zorgen voor een natuurlijke lichtinval in de ruimte.
Het is mogelijk om binnen een kantoorruimte te creëren, zodat zowel administratieve als operationele activiteiten in één pand gecombineerd kunnen worden.
Daarnaast is er gemeenschappelijk sanitair aanwezig.
Technische voorzieningen:
– LED-verlichting
– Camerabewaking op afgesloten terrein
– Nachtverlichting en parkeergelegenheden aanwezig.
Deze logistieke ruimte is niet geschikt voor auto-gerelateerde activiteiten.
Financieel:
Prijs: € 5.000/maand
Prijs/m²/jaar: € 75/m²/jaar
Lasten: € 5,00/m²/jaar





