Home
Properties
Services
About Oreon
Contact
Valuation
NL
EN
Home
Properties
Services
About Oreon
Contact
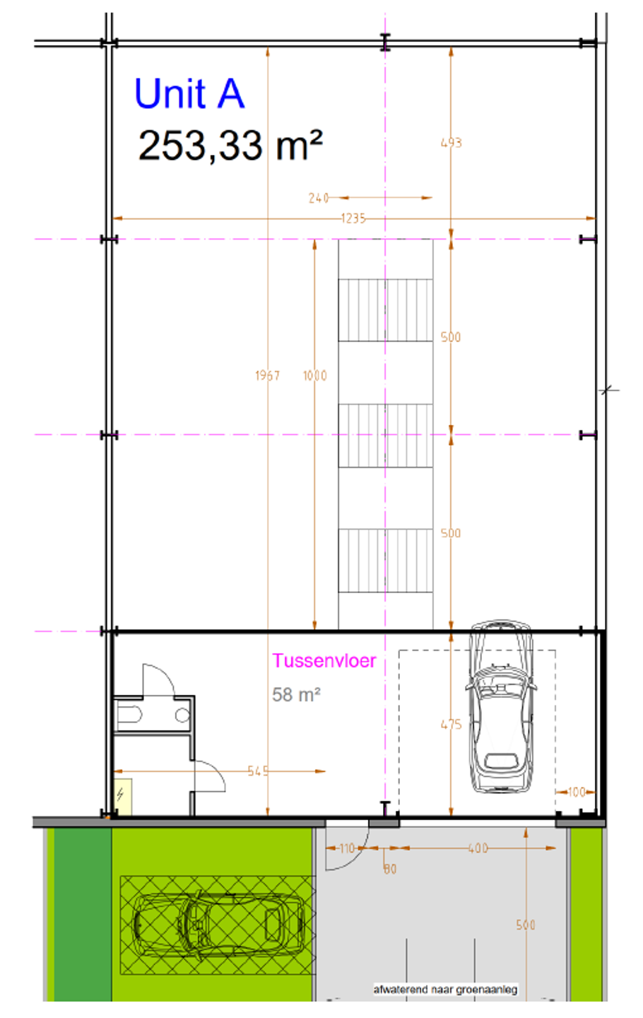
Middelmolenlaan 50, 2100 Antwerpen Deurne
Industrial for rent Antwerpen Deurne
For rent
Industrial
€ 2.250 / month
312m²
Interested or need more information?
Please enable JavaScript in your browser to complete this form.
Please enable JavaScript in your browser to complete this form.
Salutation
(Required)
Sir
Madam
Name
(Required)
Email
(Required)
Phone number
(Required)
Message
(Required)
Privacy
(Required)
I accept the
privacy policy
Send
Share
Interested or need more information?
Philippe De Brouwer
03 689 66 55
philippe.db@oreon-properties.be
Complete the contact form